Questo sito utilizza cookie, anche di terze parti, per inviarti pubblicità e servizi in linea con le tue preferenze. Se vuoi saperne di più o negare il consenso a tutti o ad alcuni cookie clicca qui Chiudendo questo banner, scorrendo questa pagina o cliccando qualunque suo elemento acconsenti all’uso dei cookie.

Negozio in affitto

SPAZIO COMMERCIALE VETRINATO 260 MQ A BASALDELLA

PREZZO €3.200

Riferimento: UN826

scopri

  • Indirizzo
    via Adriatica 39, Campoformido, 33030
  • MQ
    260
  • piano
    Piano terra
  • Camere
    n.d.
  • Bagni
    n.d.
  • terrazze
    no
  • posto auto
    Scoperto

Stampa scheda

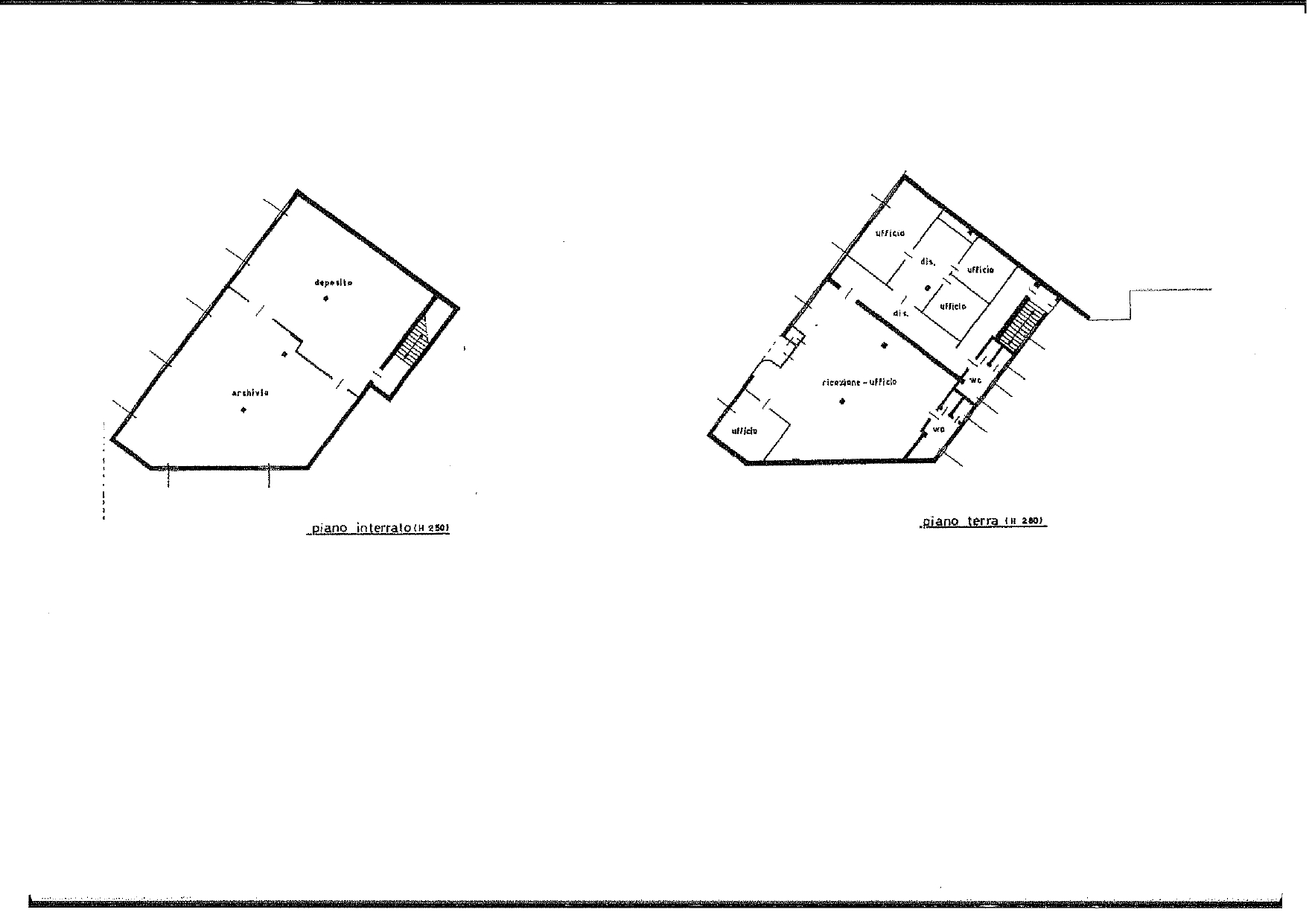
Per chi è in cerca di un immobile che doni visibilità alla propria attività, alle porte di Udine Sud, a Basaldella in Via Adriatica sulla Strada Regionale, disponiamo di uno spazio commerciale di un ex filiale bancaria. La facciata con le sue quattro vetrine è posta al piano terra con una superficie di 260 mq, attualmente con un ambiente unico e aperto ma con la possibilità di suddividerlo in due distiniti spazi con ingressi indipendenti. Il riscaldamento e il raffreddamento degli ambienti è stato recentemente rinnovato con un impianto con sistema a pompe di calore posto nello ampio scantinato di 230 mq che collegato al proprio interno potrà essere utlizzato anche come magazzino. Dispone di posti auto scoperti utili sia per la sosta che per il parcheggio. Il canone di locazione è da ritenersi soggetto ad IVA.