Questo sito utilizza cookie, anche di terze parti, per inviarti pubblicità e servizi in linea con le tue preferenze. Se vuoi saperne di più o negare il consenso a tutti o ad alcuni cookie clicca qui Chiudendo questo banner, scorrendo questa pagina o cliccando qualunque suo elemento acconsenti all’uso dei cookie.

Ufficio in vendita

UFFICIO VETRINATO DI 110 MQ ZONA OSPEDALE

PREZZO €165.000

Riferimento: UN858

scopri

  • Indirizzo
    Via del Cotonificio 41, Udine, 33100
  • MQ
    110
  • piano
    Piano terra
  • Camere
    n.d.
  • Bagni
    n.d.
  • terrazze
    no
  • posto auto
    Coperto

Stampa scheda

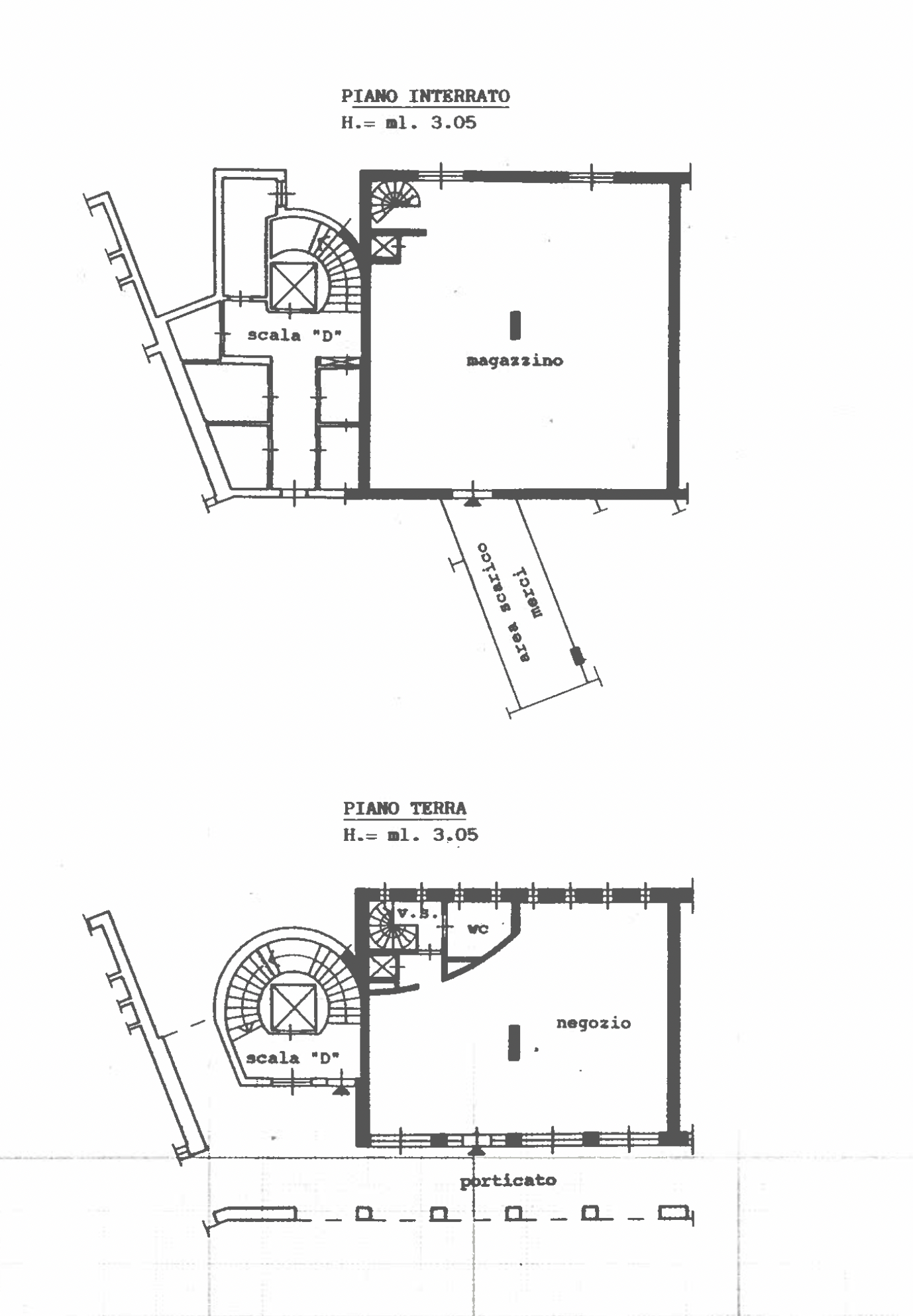
In condominio realizzato fine anni ’90 con architettura industriale con mattoncini faccia a vista, in Via del Cotonificio disponiamo di unità ad uso direzionale posta al piano terra con vetrine che si affacciano sulla corte interna. Suddivisa con più vani e un bagno a disposizione la superficie di 110 mq si sviluppa su piano unico, priva di barriere architettoniche può essere ideale visto la vicinanza dell’Ospedale da adibire ad uso laboratorio, studio medico o per qualsiasi altra attività commerciale. Per chi ha la necessità di archiviare o depositare dei materiali, al proprio interno l’unità dispone di un collegamento con il proprio magazzino di 145 mq con posto auto dedicato al carico e scarico. Vi è la disponibilità di cederlo in locazione. La vendita è soggetta ad Iva. Le immagini si riferiscono all'arredo del precedente inquilino, pertanto non corrispondono allo stato attuale.