Questo sito utilizza cookie, anche di terze parti, per inviarti pubblicità e servizi in linea con le tue preferenze. Se vuoi saperne di più o negare il consenso a tutti o ad alcuni cookie clicca qui Chiudendo questo banner, scorrendo questa pagina o cliccando qualunque suo elemento acconsenti all’uso dei cookie.

Ufficio in vendita

UFFICI DI VARIA METRATURA IN AFFITTO

PREZZO €3.000

Riferimento: UN872

scopri

  • Indirizzo
    Pradamano, via Nazionale 36
  • MQ
    1200
  • piano
    Su più livelli
  • Camere
    n.d.
  • Bagni
    n.d.
  • terrazze
    no
  • posto auto
    Garage

Stampa scheda

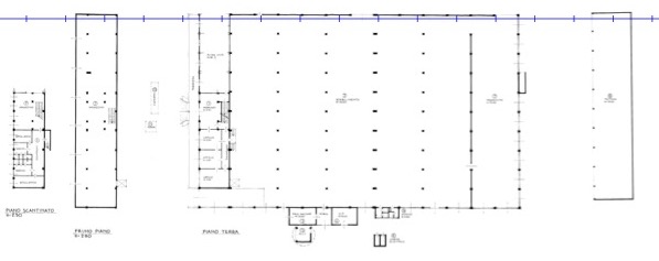
Pradamano, sulla strada statale SR56 che collega Udine a Gorizia, poco distante dagli imbocchi di autostrada e tangenziale, disponiamo in affitto di diversi uffici che variano dai 400 ai 900 mq. Gli uffici sono situati all’interno di un capannone di 3600 mq, di cui 2400 anch’essi in affitto. Grazie alla sua posizione su una strada ad alto scorrimento risulta sicuramente una soluzione molto interessante. Il capannone ha una struttura in pilastri e travi di cemento con copertura a shed e a volta, è dotato di portoni scorrevoli per l'accesso carrabile all'interno dei locali e un piano di carico. Gli uffici dispongono inoltre di bagno, aria condizionata e riscaldamento.