Questo sito utilizza cookie, anche di terze parti, per inviarti pubblicità e servizi in linea con le tue preferenze. Se vuoi saperne di più o negare il consenso a tutti o ad alcuni cookie clicca qui Chiudendo questo banner, scorrendo questa pagina o cliccando qualunque suo elemento acconsenti all’uso dei cookie.

Capannone industriale in affitto

CAPANNONE IN AFFITTO UDINE

PREZZO €2.500

Riferimento: UN910

scopri

  • Indirizzo
  • MQ
    345
  • piano
  • Camere
    n.d.
  • Bagni
    n.d.
  • terrazze
    no
  • posto auto
    Assente

Stampa scheda

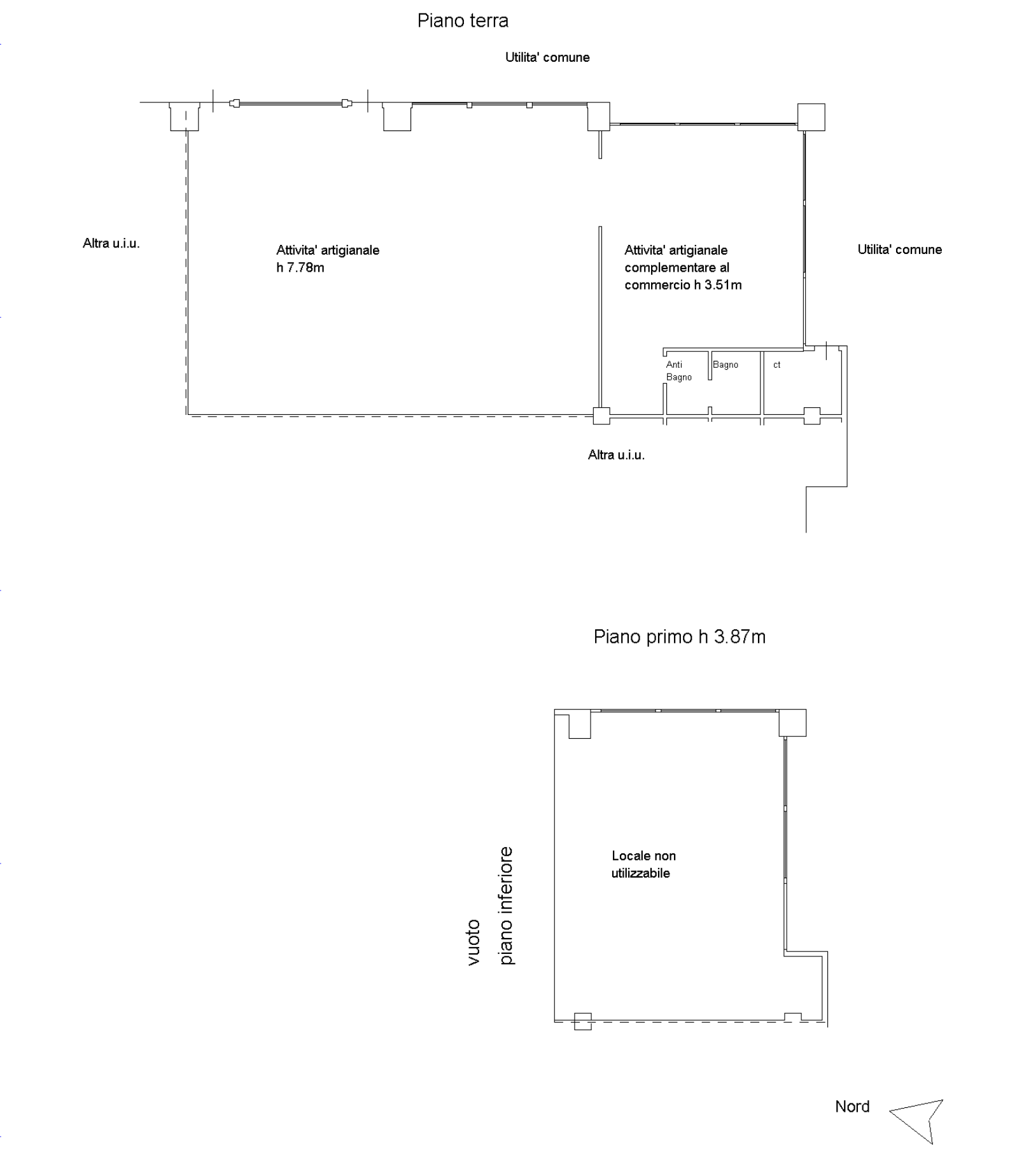
L’agenzia Unik propone in locazione un capannone con ufficio situato in una buona posizione a Udine Nord, in Via Tavagnacco 89, a pochi passi dall'imbocco della tangenziale, che garantisce un accesso rapido alle principali vie di comunicazione. L’unità immobiliare di 350 mq si compone di una parte adibita a capannone di circa 270 mq, con altezze di quasi 8 metri, utili per operazioni di stoccaggio e magazzino e una parte adibita ad ufficio con vetrine di circa 80 mq che può essere utilizzata come zona di accoglienza clienti o vendita al dettaglio. Vi è la possibilità di collegare con una scala interna il piano sovrastante, andando a creare un ulteriore spazio ad uso ufficio di 80 mq. Un elemento da considerare è che ci sono due funzionali portoni sezionali di grande larghezza e altezza, che permettono di gestire le operazioni di carico/scarico con facilità. L’area dispone di posti auto, con relativa area di manovra, disponibili per la sosta di clienti e dipendenti. La locazione è soggetta ad iva.