Questo sito utilizza cookie, anche di terze parti, per inviarti pubblicità e servizi in linea con le tue preferenze. Se vuoi saperne di più o negare il consenso a tutti o ad alcuni cookie clicca qui Chiudendo questo banner, scorrendo questa pagina o cliccando qualunque suo elemento acconsenti all’uso dei cookie.

Ufficio in affitto

UFFICIO PASIAN DI PRATO

PREZZO €2.400

Riferimento: UN917

scopri

  • Indirizzo
    Viale Venezia 410, Udine,33100
  • MQ
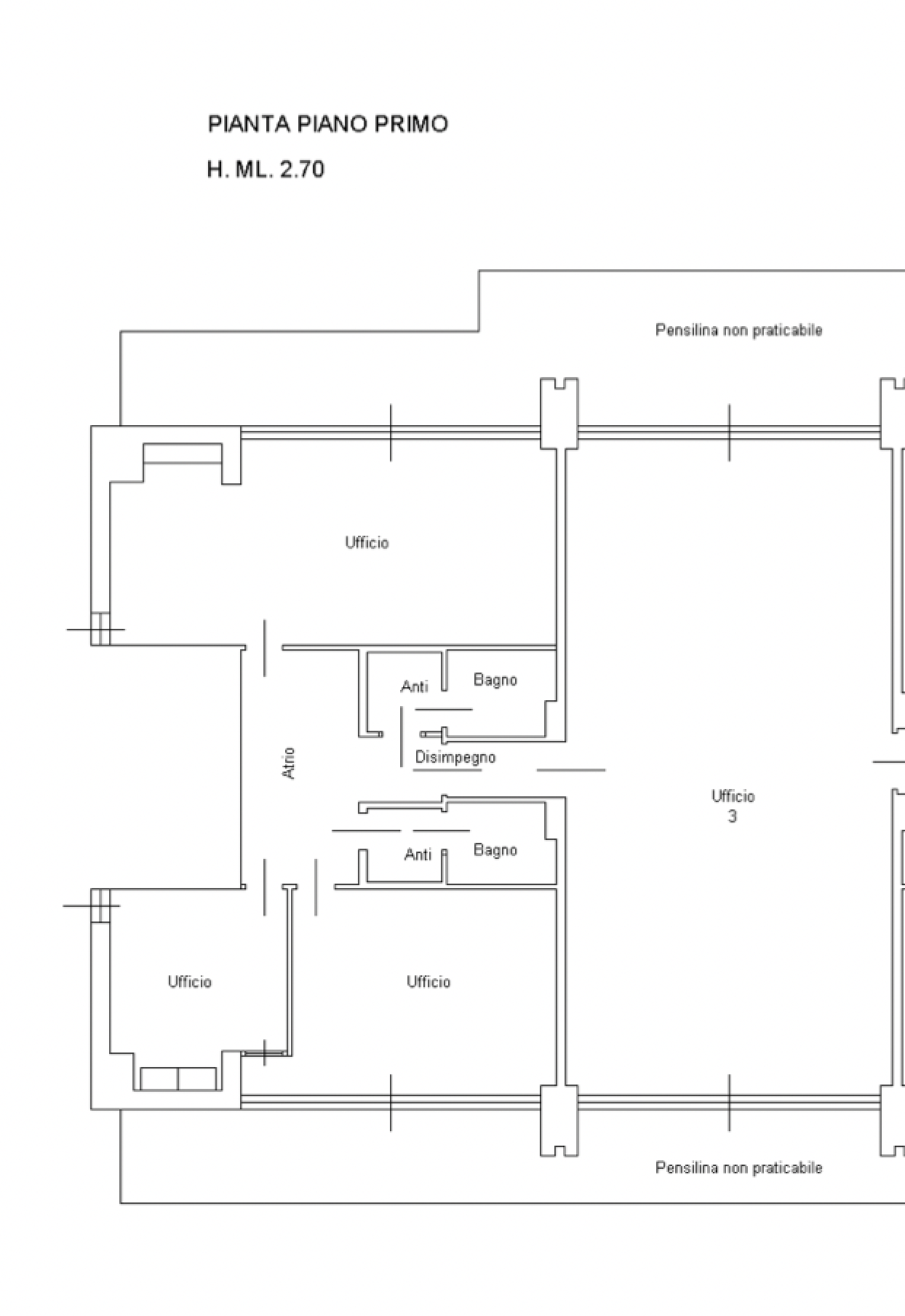
    250
  • piano
    Ultimo
  • Camere
    n.d.
  • Bagni
    n.d.
  • terrazze
    no
  • posto auto
    Coperto

Stampa scheda

Alle porte di Udine, sulla strada statale di Pasian di Prato, in Via Santa Caterina, in ottima posizione non molto distante dalla tangenziale e con la comodità della fermata dal bus urbano 4, disponiamo di un'unità sita al primo piano a destinazione direzionale con una superficie di 250 mq, attrezzata con bagni per disabili, con l'aggiunta, qualora si volesse, di un ulteriore spazio ad uso magazzino sito al piano interrato di 150 mq. L'unità si presenta in ottimo stato: l’impianto di riscaldamento e raffrescamento è di ultima generazione; gli ambienti sono resi confortevoli dalle ampie finestre che permettono di lavorare con la luce naturale. All'interno della proprietà, per chi ne avesse la necessità si trovano otto posti auto coperti oltre al parcheggio pubblico situato accanto al fabbricato. La locazione è soggetta ad iva.